Eladó Ikerház, Nyíregyháza

#725600187

Eladó Ikerház

78 millió Ft

Nyíregyháza Nyírszőlős
Alapterület:
137 m2
Szobák száma:
4
Állapot:
Új építésű
Építési mód:
Tégla
CSOK igényelhető
Kertkapcsolatos

Kérjen személyes bemutatást!
Adja meg adatait, és hogy mikor érne rá!

Az Adatkezelési tájékoztatót elolvastam és elfogadom.

Megfelelő időpontok

Hétköznap délelőtt
Hétköznap délután
Hétköznap este
Hétvégén délelőtt
Hétvégén délután
Hétvégén este
Kérés elküldése
700 m2
Kiváló
Hőszivattyú
Önálló kert
1
Összkomfort
Bevezetve (230 Volt)
Van
Derítő

Nyíregyháza Nyírszőlős csendes utcájában nappali - amerikai konyha + 3 szobás, ÚJ ÉPÍTÉSŰ IKERHÁZ!

Nyíregyháza Nyírszőlős csendes utcájában 137 nm-es, nappali - amerikai konyha + 3 szobás, ÚJ ÉPÍTÉSŰ IKERHÁZ, 22.99 nm-es garázzsal 700 nm-es telken eladó!

 

Az ikerházi lakások csak a  garázsoknál érintkeznek,  így szinte  ÖNÁLLÓ HÁZKÉNT FUNKCIONÁLNAK!

 

Az ingatlan főbb jellemzői:

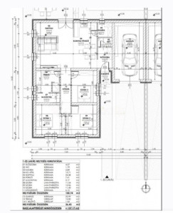
Lakótér: 100,74 nm + 22,99 nm Garázs + 12 nm Terasz + fedett belépő 1,44 nm

Porotherm 30 tégla falazatú, 20 cm-es homlokzati szigeteléssel,

Fokozottan hőszigetelt 3 rétegű űvegezésű, 6 légkamrás műanyag nyílászárók,

Fa födémszerkezet 30 cm-es födém szigeteléssel,

Hőszivattyús fűtésrendszer, minden helyiségben padlófűtéssel,

 

A ház körül és a garázs előtt a térkövezés az ár részét képezik, viszont  a kerítés nem.

 

Burkolatok, szaniterek, beltéri ajtők választhatóak értékegyeztetéssel!

 

Várható átadás: 2026 nyár

 

Díjmentes hitel, OTTHON START, Babaváró, Biztosítások ügyintézése!

Ügyfeleink számára minden szolgáltatásunk DÍJMENTES!

 

Tel:+36 30 579 6521

Lehoczki Mihály Ingatlanközvetítő

Helyiség Méret (m2)
Amerikai konyhás nappali 40.09
Szoba 11.54
Szoba 12.06
Szoba 11.4
Előszoba 4.27
Közlekedő 6.12
Háztartási helyiség 3.17
Kamra, Éléskamra, Spájz 2.89
Fürdőszoba + WC 7.41
WC 1.79
Előtér 1.44
Terasz 12
Garázs 22.99

Kérdése van?
Adja meg adatait és felhívjuk!

Az Adatkezelési tájékoztatót elolvastam és elfogadom.
Üzenet küldése